TEC-HANDSEILWINDEN (Schneckenradwinden)
Merkmale:
-Konstruktion nach DIN 15020
-Mit
Lastdruckbremse
-Die Kurbel ist längenverstellbar und rückstossfrei.
-Die Trommel und Achsen sind mit Nadellager versehen.
-Modelle
mit einer Zugkraft ab 2000 kg verfügen durch Umstecken der Kurbel über zwei
Hubgeschwindigkeiten
-Farbe: Grün-Blau (RAL 604) einbranndlackierung
Sonderausführungen:
-Verzinkte
Trommel (Aufpreis 20%)
-Trennsteg
für doppelte Seilwicklung.
-Umklappbarer
Kugelgriff.
-Freilaufeinrichtung
-Schmale
Trommel
|
|
Tragkraft
1
Seillage |
Tragkraft Letzte
Seillage |
SeilÆ |
Trommelkapazität Nutzbar
/ Benötigt |
Hub pro Umdrehung 1 Seillage |
Hub pro Kurbelumdreh. letzte Seillage |
Kurbelkraft 1 Seillage |
Gewicht ohne
Seil |
|
|
Typ |
kg |
kg |
mm |
m |
m |
Mm |
mm |
kg |
kg |
|
ETS-0,25 |
250 |
95 |
5 |
67,8 |
68,5 |
12 |
17 |
3,2 |
13 |
|
ETS-0,5 |
500 |
239 |
6 |
67,7 |
68,0 |
12 |
20 |
7,5 |
16 |
|
ETS-1,0 |
1000 |
542 |
9 |
58,1 |
59,4 |
25 |
13 |
10,6 |
26 |
|
ETS-1,5 |
1500 |
845 |
10 |
50,4 |
51,8 |
25 |
13 |
16,0 |
28 |
|
ETS-2,0 |
2000 |
1129 |
13 |
48,1 |
49,8 |
33 |
12-6 |
18,0-8,9 |
60 |
|
ETS-3,0 |
3000 |
1861 |
16 |
42,7 |
44,8 |
45 |
12-6 |
24,0-12,0 |
78 |
|
ETS-5,0 |
5000 |
3165 |
20 |
42,5 |
45,2 |
50 |
11-3 |
50,4-25,2 |
115 |
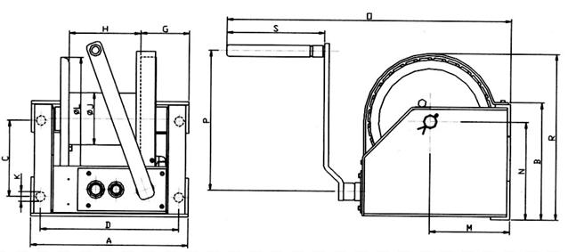
Technisch Daten ETS250 – ETS500 – ETS1000 - ETS1500

|
Type |
A |
B |
C |
D |
G |
H |
J |
K |
L |
M |
N |
O |
P |
R |
S |
|
ETS250 |
293 |
140 |
82 |
261 |
123 |
107 |
48 |
17 |
160 |
121 |
88 |
410 |
350 |
170 |
140 |
|
ETS500 |
313 |
164 |
106 |
281 |
125 |
129 |
70 |
17 |
190 |
138 |
96 |
440 |
350 |
190 |
140 |
|
ETS1000 |
348 |
201 |
141 |
316 |
127 |
160 |
102 |
17 |
240 |
164 |
140 |
490 |
350 |
260 |
140 |
|
ETS1500 |
378 |
238 |
178 |
346 |
127 |
185 |
102 |
17 |
240 |
164 |
142 |
490 |
350 |
263 |
140 |
Technisch Daten ETS2000 – ETS3000 – ETS5000

|
Type |
A |
B |
C |
D |
G |
H |
J |
K |
L |
M |
N |
O |
P |
R |
S |
|
ETS 2000 |
410 |
295 |
196 |
360 |
137 |
180 |
133 |
25 |
312 |
208 |
249 |
740 |
380 |
419 |
250 |
|
ETS 3000 |
436 |
356 |
251 |
386 |
137 |
205 |
165 |
25 |
376 |
260 |
308 |
825 |
380 |
550 |
250 |
|
ETS 5000 |
436 |
421 |
316 |
386 |
138 |
200 |
219 |
25 |
437 |
298 |
335 |
865 |
380 |
613 |
250 |